3 habitaciones in The Ritz Carlton - Real Estate Agency

3 habitaciones in The Ritz Carlton

Al Jaddaf (I)
Creek Metro Station
(7 min. )
20 363 000

Descripción del complejo

Ubicado en la zona histórica de Creekside, The Ritz-Carlton Residences será el primer proyecto residencial de la marca Ritz-Carlton en el emirato de Dubái. El proyecto fue lanzado en el primer trimestre de 2022 por MAG of Life, parte de MAG Group, que firmó un acuerdo con Marriott International para traer el complejo al emirato. Los posibles compradores de bienes raíces estarán interesados en saber que todas las unidades se venderán completamente amuebladas y que las mega mansiones, en particular, contarán con patios con marcos de vidrio, terrazas cubiertas y jardines paisajísticos. Las mansiones estarán disponibles en 3 diseños y temas arquitectónicos, llamados Energizing Earth Mansion, Tranquil Water Mansion y Serene Sky Mansion. Cada residencia contará con las últimas soluciones de bienestar diseñadas en colaboración con Delos, como los sistemas de purificación de aire y agua y la iluminación dinámica, para mejorar el bienestar de sus ocupantes. Sin olvidar el mobiliario de interior y exterior, así como la iluminación decorativa de algunas de las marcas líderes del sector, como Giorgetti, Baroncelli, Foscarini y Cessina, por nombrar algunas.

Información sobre el objeto

Delivery date:
01.2027
S total:
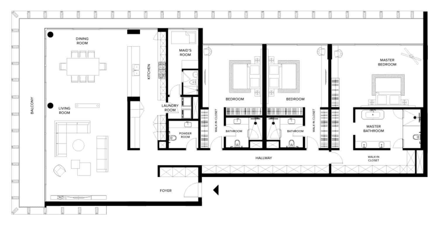
491.72m²
Beds:
3 habitaciones
Baths:
4
View:
Ciudad
Ceiling height :
3 m
Windows view:
Panorámico
Facade:
Conjunto
Wall Material:
Monolito
Parking:
Estacionamiento subterráneo
Elevator:
Ascensor + Escaleras
Complex Name:
Localización:
Dubái, Al Jaddaf (I)
The Ritz Carlton
Developer:
Delivery date:
01.2027
Tipo:
Apartamento
Localización:
Metro :
Creek Metro Station
En el coche :
7 min.
Desde 9 287 000
Descargar presentación
Planos y precios, galería de fotos e infraestructura
Descargar ahora

Características

Zona de estar para residentes
Sistema de seguridad CCTV
Piscina cubierta
Piscina al aire libre
Gimnasia
Piscina infantil
Restaurante
Seguridad
Servicio de conserjería
Piscina compartida
Zona de barbacoa
Espacio para trabajar
Campo deportivo
Diseños
Select number of bedrooms:
Todos los diseños
1 dormitorio
2 habitaciones
3 habitaciones
491.72m²
Precio
20 363 000
572.43m²
Precio
9 287 000
577.16m²
Precio
9 288 000
492.39m²
Precio
14 100 000
247.15m²
 
Sold out
Calculadora hipotecaria
Calcule cuánto podría pedir prestado a nuestros bancos asociados
0 años
Monto estimado del pago hipotecario :
0 AED
/ por mes
Salario mínimo:
0 AED
/ por mes
Monto total del préstamo
0 AED
Duración del préstamo
0 años
Todas las estimaciones son aproximadas y se proporcionan solo con fines informativos.

Localización

Al Jaddaf (I)
Creek Metro Station
(7 min. )
About Al Jaddaf (I)
Al Jaddaf es un distrito ubicado en Dubái, Emiratos Árabes Unidos. Está situado en el corazón de la ciudad, junto a Dubai Creek, y es conocido por su mezcla de desarrollos residenciales y comerciales. El nombre Al Jaddaf se traduce como «El remero» en árabe, lo que es una referencia a la historia del distrito como centro de construcción de barcos. Al Jaddaf es un lugar popular para la inversión inmobiliaria debido a su ubicación privilegiada y la alta demanda de propiedades de lujo en la zona. Los tipos de propiedades más populares en Al Jaddaf son los apartamentos y las casas adosadas. Los precios de los bienes raíces en Al Jaddaf varían según el tipo de propiedad, la ubicación y el tamaño. El distrito tiene varios desarrollos nuevos en marcha, que se espera que aumenten aún más los precios de las propiedades en los próximos años.
Catálogo de propiedades - TOP 100
fill in the contact details and proceed to download the catalog
Descargar ahora

Diseños similares

Delivery date: 05-2027
Popular
Dubái, Downtown Jebel Ali
2 habitaciones in Eleve
1 515 241
Departamento
/
104.28m²
/
2 habitaciones
Más detalles
Delivery date: 05-2026
Popular
Dubái, DPC (Dubai Production City)
1 dormitorio in Jannat
1 017 103
Departamento
/
92.6m²
/
1 dormitorio
Más detalles
Delivery date: 12-2026
Popular
Dubái, Al Wasl
2 habitaciones in One
4 115 708
Dúplex
/
176.61m²
/
2 habitaciones
Más detalles
Delivery date: 02-2026
Popular
Umm Al Quwain, Siniya Island
2 habitaciones in Aquamarine Beach Residences
2 538 284
Departamento
/
95.53m²
/
2 habitaciones
Más detalles
Delivery date: 01-2026
Popular
Dubái, Wadi Al Safa (IV)
2 habitaciones in 330
2 033 000
Departamento
/
122.76m²
/
2 habitaciones
Más detalles
Delivery date: 04-2026
Popular
Dubái, Dubai Science Park
1 dormitorio in Binghatti Hillviews
1 624 999
Departamento
/
75.74m²
/
1 dormitorio
Más detalles